Fully updated, centrally located, and move-in ready—this 4 bedroom, 2 bathroom home checks all the boxes! Since 2021, the heavy lifting has been done: new furnace and A/C, updated insulation and drywall, new flooring, windows, and a roof with plenty of life left. Inside, you’ll find a bright, sun-filled layout with great views and a modern kitchen update featuring open flow, new appliances and bar seating. The lower level has been reworked into a flexible in-law suite, offering income potential or additional living space depending on your needs. Outside, the fenced backyard is perfect for kids and pets, complemented by a detached single garage, a small workshop, and convenient rear lane access with off-street parking. There’s even a gate to accommodate RV or trailer storage. Set in North Castlegar, you can walk to all levels of school, Millenium Park, Zuckerberg Island, Castlegar Bike park and nearby shopping amenities—no need for the bus. A solid, well-updated home in a great location with options to suit a variety of buyers. (id:4069)
Address
650 9TH Avenue
List Price
$545,000
Property Type
Single Family
Type of Dwelling
Single Family
Transaction Type
Sale
Area
British Columbia
Sub-Area
Castlegar
Bedrooms
4
Bathrooms
2
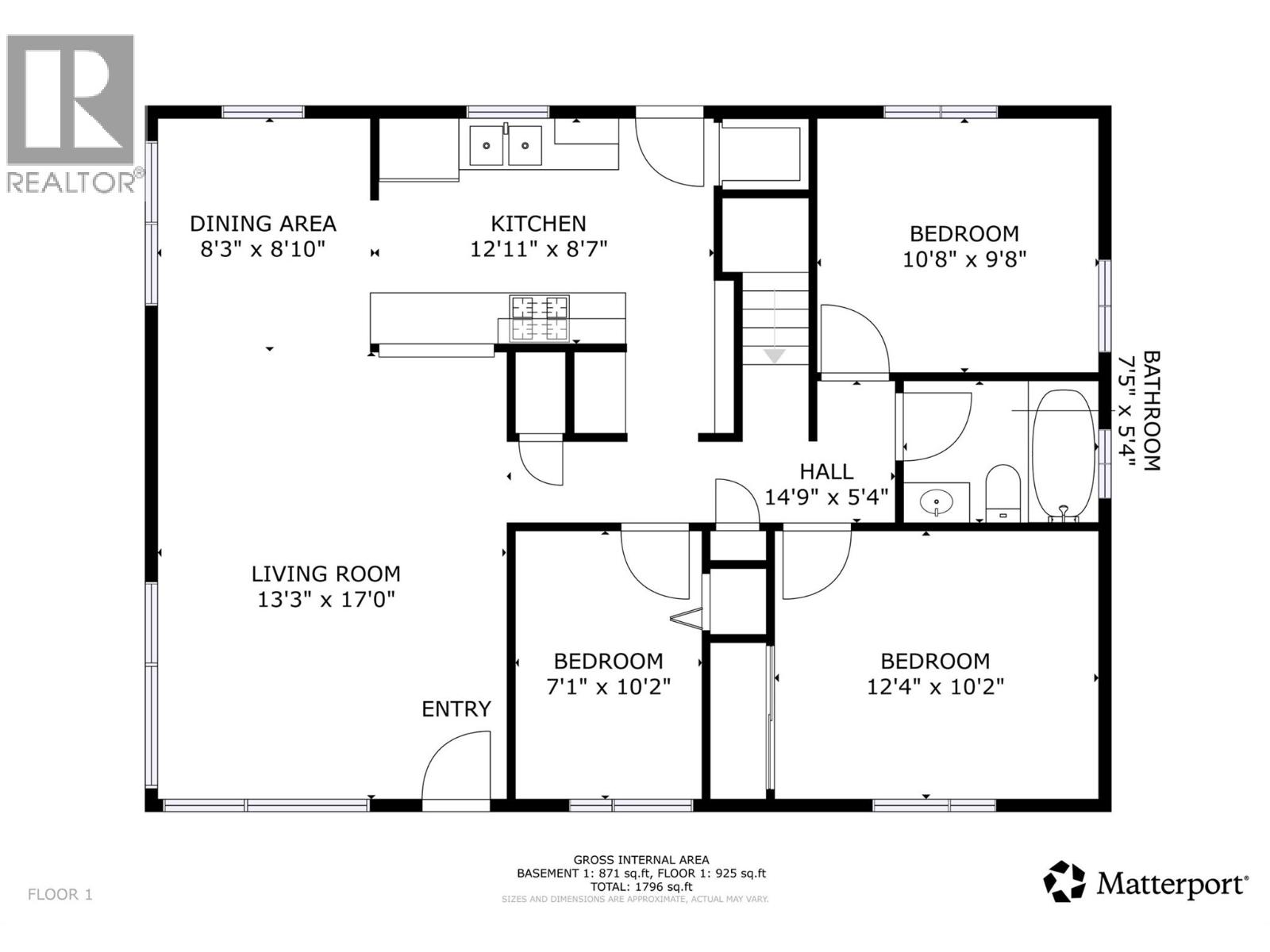
Floor Area
1,796 Sq. Ft.
Lot Size
0.12 Ac.
Year Built
1955
MLS® Number
10382613
Listing Brokerage
Royal LePage Rosling Realty
Basement Area
Full
Postal Code
V1N1M4












































