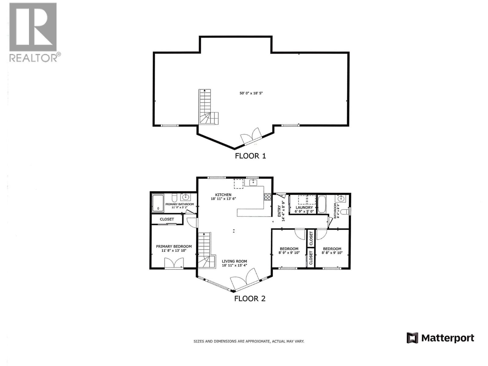
16242 Selkirk Rd is a 2011-built home which delivers the modern comforts and conveniences of a newer build and offers 3 bedrooms and 2 bathrooms on 0.84 of an acre. The bright open-concept main living area features vaulted ceilings and abundant natural light. Granite countertops, a spacious, newly resurfaced deck with access from the living room and primary bedroom, and a walkout basement with bathroom rough-in add to the home’s appeal. The lower level currently provides excellent flex space for hobbies, crafts, or future development. Set in a quiet and peaceful location, this property also offers convenient access to nearby recreation and community amenities. (id:4069)
Address
16242 Selkirk Road
List Price
$499,000
Property Type
Single Family
Type of Dwelling
House
Style of Home
Ranch
Transaction Type
Sale
Area
British Columbia
Sub-Area
Crawford Bay
Bedrooms
3
Bathrooms
2
Floor Area
2,400 Sq. Ft.
Lot Size
0.84 Ac.
Year Built
2011
MLS® Number
10384097
Listing Brokerage
Royal LePage Rosling Realty
Basement Area
Full
Postal Code
V0B1E0
Site Influences
Golf Nearby, Recreation, Schools, View
Features
Treed, Irregular lot size, Sloping


































