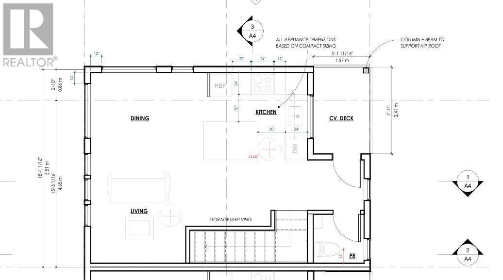
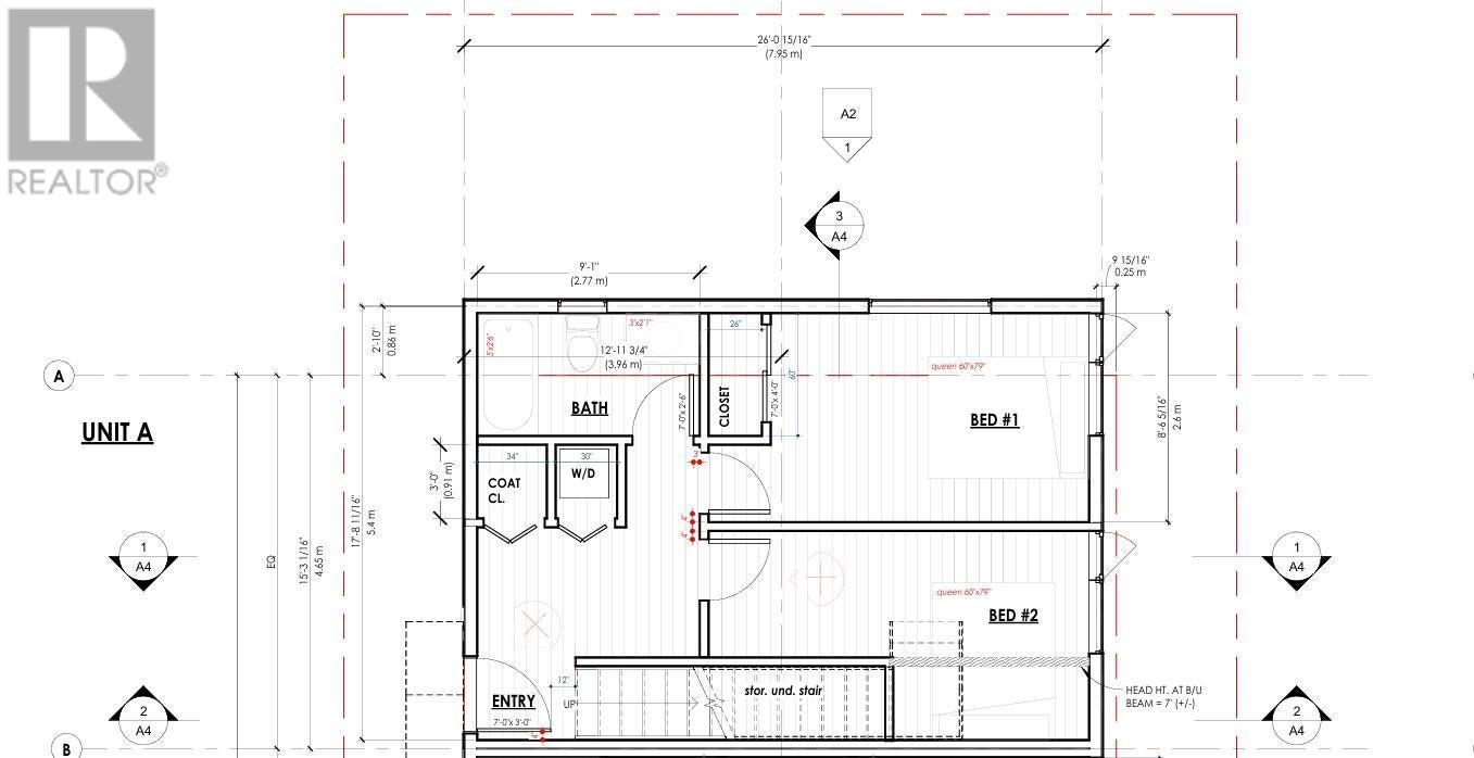
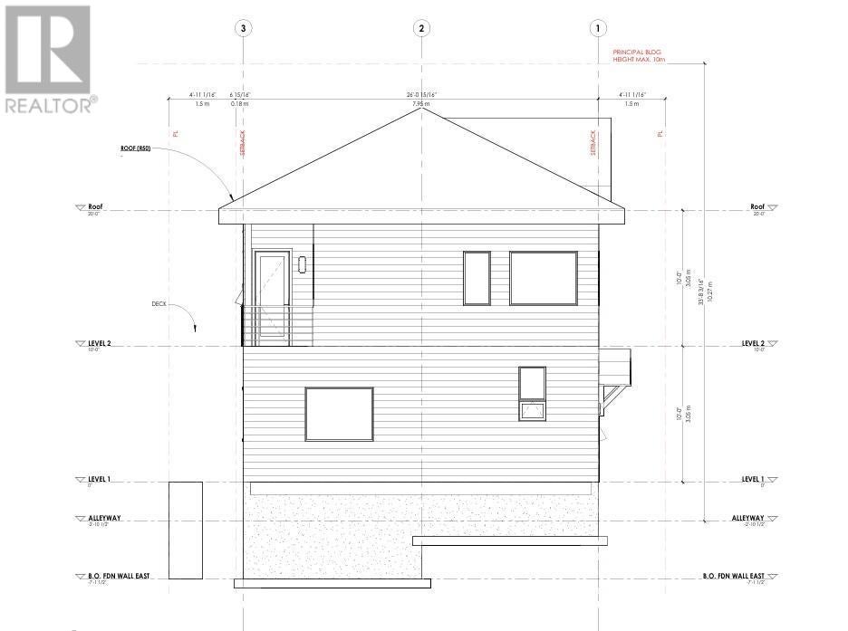
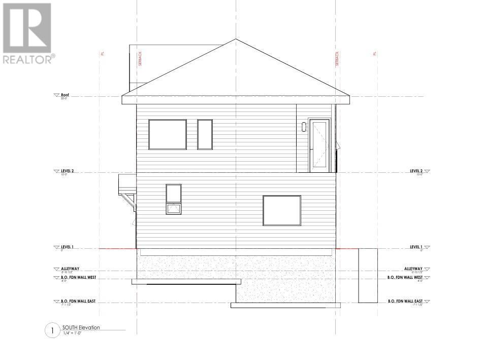
Location Location Location. 309 West Gore is designed to make the most of affordable everyday Kootenay living. Located in Rosemont, the property is an easy walk to the Downtown core, elementary schools, Junior Highschool, churches, convenience stores and Granite Pointe Golf Course. This modern design home utilizes its switched floorplan to offer a bright and open top floor living plan with 10' ceiling, contemporary flat panel and soft close cabinetry, quartz countertops, tile backsplash, energy efficient LED lighting, spc flooring, 2 pce bathroom and access to a private deck and to take advantage of the views over neighbouring homes. The Main level offers 2 comfortable bedrooms with laundry and the full size bathroom. What an investment for first time buyers, retirees, single parents or anyone looking for an affordable option to purchase a new home with a 2-5-10 warranty. This is a presale offering with construction expected to start fall 2025. (id:4069)
Address
309 WEST GORE Street Unit# SL A
List Price
$499,900
Property Type
Single Family
Type of Dwelling
Single Family
Transaction Type
Sale
Area
British Columbia
Sub-Area
Nelson
Bedrooms
2
Bathrooms
2
Floor Area
881 Sq. Ft.
Year Built
2026
MLS® Number
10347300
Listing Brokerage
Coldwell Banker Rosling Real Estate (Nelson)
Postal Code
V1L3G9
Site Influences
Golf Nearby, Public Transit, Park, View








