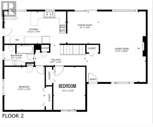
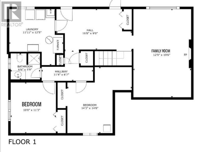
Well-maintained property located in South Slocan, in a great family-friendly neighbourhood. The property offers two homes- a 4 bedroom, 2 bathroom house plus a 1 bed, 1 bath cottage, making a great mortgage helper. There is ample storage for vehicles with a 2 car garage (with new garage doors and new roof) plus a large RV/boat garage. The main floor of the house features a large living room, dining area, kitchen, 2 bedrooms, and bathroom. Downstairs offers a large family room, two more bedrooms, and another full bath with a new ceramic shower and a sauna. The property has seen many upgrades, there is little to do but move in and add your own personal touch to the place. Upgrades include a brand new heat pump (central air, heat and a/c via heat pump) new hot water tank, new roof on the double mechanic garage. Newer windows in the house and cottage (which has greatly reduced any highway noise in the house), fresh exterior paint, and insulation in the attic. This property is close to many amenities such as grocery stores, Elementary and High Schools, a bank, a gas station, garden center, fabulous swimming holes, and right next to the rail trail. Only 20 min to Nelson, Castlegar, and the Slocan Valley, this home makes for a desirable location. Book your viewing today! (id:4069)
Address
3164 MURRAY Road
List Price
$689,000
Property Type
Single Family
Type of Dwelling
Single Family
Transaction Type
Sale
Area
British Columbia
Sub-Area
South Slocan
Bedrooms
5
Bathrooms
2
Floor Area
3,322 Sq. Ft.
Lot Size
0.32 Ac.
Year Built
1969
MLS® Number
10349061
Listing Brokerage
Coldwell Banker Rosling Real Estate (Nelson)
Basement Area
Full
Postal Code
V0G2G1
Site Influences
View
Features
One Balcony






























































































