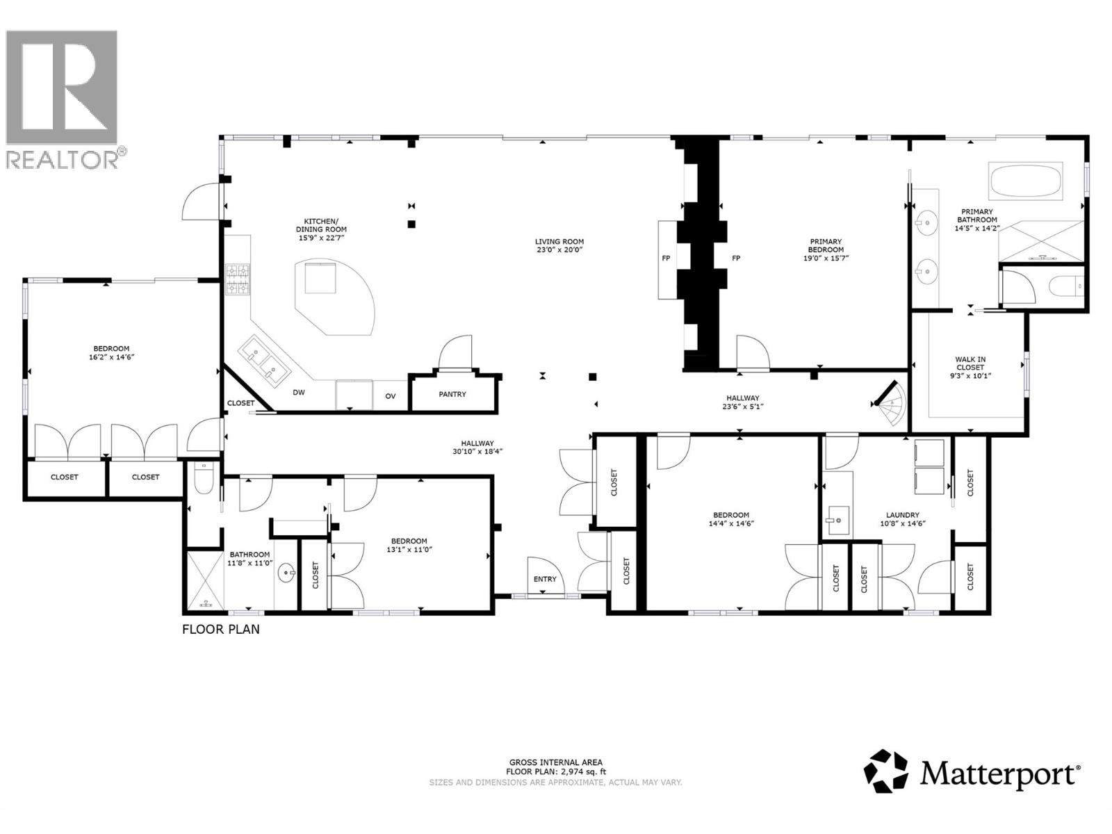
234 Walkers Lane is a custom-crafted home built in 2014 by Purcell Timber Frames. Situated on a 1-acre lot within a small, private community, this property offers exclusive access to a private beach, boat launch, and a mooring pin included with the sale. Designed for both comfort and sophistication, this single-level home features 3,050 sq. ft. of living space, plus an additional 250 sq. ft. of loft space. With 4 bedrooms and 2.5 bathrooms, the layout provides plenty of room to unwind and entertain. The moment you step inside, you’re greeted by expansive lake and mountain views pouring in through oversized windows and patio doors. Vaulted ceilings and an open-concept design enhance the natural light, showcasing the exceptional craftsmanship and high-quality materials throughout. The exterior is equally impressive. A 1,145 sq. ft. cedar deck stretches the full length of the home—an ideal space to put your feet up and enjoy the panoramic scenery. The property offers level access, ample parking for guests, and a sunny grassy area with garden space along the north side. Every detail has been carefully considered, from the professionally designed indoor and outdoor lighting to the premium finishes, including hickory hardwood floors, cedar siding, a natural stone fireplace, and two custom wine racks. This home is truly a rare blend of luxury, comfort, and timeless design. (id:4069)
Address
234 WALKERS Lane
List Price
$1,998,000
Property Type
Single Family
Type of Dwelling
Single Family
Style of Home
Ranch
Transaction Type
Sale
Area
British Columbia
Sub-Area
Kootenay Bay
Bedrooms
4
Bathrooms
3
Floor Area
3,274 Sq. Ft.
Lot Size
1 Ac.
Year Built
2014
Maint. Fee
$60.00
MLS® Number
10370432
Listing Brokerage
Coldwell Banker Rosling Real Estate (Nelson)
Basement Area
Crawl space
Postal Code
V0B1X0
Site Influences
Recreation, View
Features
Level lot























































